Descrizione

Località: San Rigo, Via Ghiarda, Reggio Emilia
Classe Energetica: A4

Siamo lieti di presentarvi un'opportunità unica nel cuore di Reggio Emilia: due splendide bifamiliari con finiture di altissimo livello, progettate per offrire il massimo comfort e un'elevata efficienza energetica.

Caratteristiche Principali:

  • Classe Energetica A4: Massima efficienza energetica per un risparmio assicurato e un impatto ambientale ridotto.
  • Ubicazione Prestigiosa: Situate a San Rigo, in Via Ghiarda, in una zona tranquilla e ben collegata ai principali servizi.
  • Finiture di Pregio: Materiali di alta qualità e attenzione ai dettagli per un'abitazione elegante e moderna.
  • Design Moderno: Architettura contemporanea con spazi ampi e luminosi.

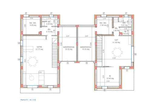
Piano Terra:

  • Soggiorno/Pranzo/Cucina:
  • Locale Tecnico:
  • Bagno di Servizio:
  • Disimpegno:
  • Ripostiglio:
  • Garage:

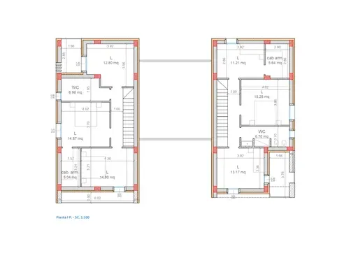
Primo Piano:

  • Camera Matrimoniale con Cabina Armadio:
  • Seconda Camera da Letto
  • Terza Camera da Letto
  • Bagno Principale:
  • Bagno Secondario
  • Disimpegno

Planimetrie

Altre caratteristiche

Stato avanzamento lavori
In completamento
Classe energetica intervento
A4
Consegna prevista il
02/02/2026
Unità immobiliari con ingresso indipendente

Le unità immobiliari disponibili

3

Trattiva riservata

3
2
Garage/Posto Auto
A4
Località: San Rigo, Via Ghiarda, Reggio EmiliaClasse Energetica: A4Siamo lieti di presentarvi un'opportunità unica nel cuore di Reggio Emilia: una splendida bifamiliare con finiture di altissimo livel...
Contatta Agenzia
Proposto da: GRUPPO SAF COSTRUZIONI
Tel: 335 6493893
Richiedi informazioni
Questa form è protetta da reCAPTCHA e si applicano la Privacy Policy e le Condizioni di Servizio di Google
BESbswy