135 mq
3
2
Garage/Posto Auto
Giardino privato
A pavimento
A4

Descrizione

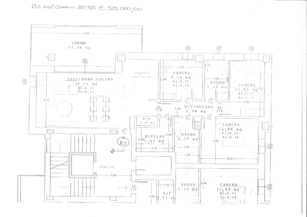
Rif. CAP165 - VIA PERETTI residenziale MODENA CITY LIFE: ULTIMO APPARTAMENTO di mq 135 comm.li posto al primo piano, ingresso su ampio soggiorno con terrazzo loggiato, cucina a vista, ripostiglio /lavanderia, zona notte con 3 camere e 2 bagni. Classe "A4", avanzate tecnologie ed impiantistiche d'avanguardia, finiture di pregio con pavimento in parquet, rubinetterie e sanitari di design, riscaldamento a pavimento, aria condizionata, tapparelle motorizzate, impianto per il ricircolo dell'aria meccanizzato, pannelli fotovoltaici, pannelli solari termici, domotica e predisposizione per antifurto. Possibilità  di scelta tra autorimesse, posti auto e cantine a parte del prezzo. euro 525000

Altre caratteristiche

Stato Immobile
Nuovo
Vani
4
Tipo di cucina
Angolo Cottura
Balconi
1
Terrazze / Logge
1
Posto auto
Riservato
Piano
1
Ascensore
Tipologia Immobile
Appartamento
Categoria Immobile
Case e Appartamenti
Contatta Agenzia
Proposto da: CAPITAL IMMOBILIARE

Quotazioni immobiliari per Buon Pastore - Modena