95 mq
2
1
Garage/Posto Auto
Arredato
Autonomo
E

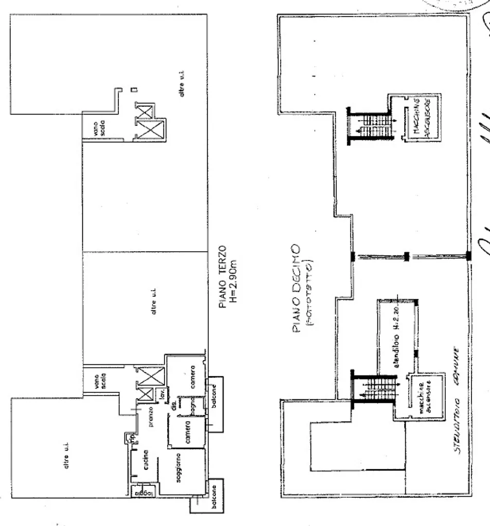
Descrizione

Rif. 333 - Rif. 333 - Si propone in vendita appartamento ristrutturato nel 2018, posto al 3°piano di 8, servito da ascensore e arredato. L'immobile è composto da sala con cucina a vista, disimpegno notte, 1 camera matrimoniale, 1 singola, bagno, lavanderia e ripostiglio. Sono presenti 2 balconi e una loggia + cantina e garage.

Planimetrie

Altre caratteristiche

Stato Immobile
Ristrutturato
Balconi
3
Posto auto
Nessuno
Piano
3
IPE
113
Spese condominiali
€ 1200 €/anno
Ascensore
Cantina
Tipologia Immobile
Appartamento
Categoria Immobile
Case e Appartamenti
Contatta Agenzia
Proposto da: IMMOBILIARE DEI MILLE

Quotazioni immobiliari per Mirabello - Reggio Emilia