140 mq
3
2
Garage/Posto Auto
Giardino privato
Arredato
Autonomo
E

Descrizione

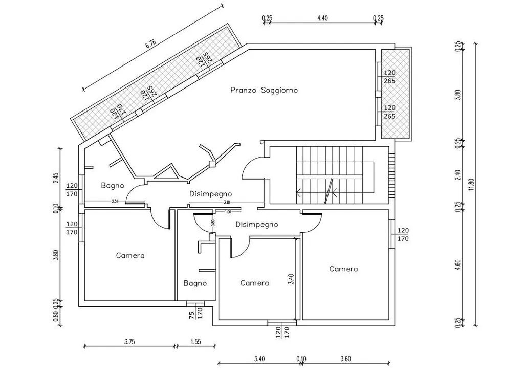
Rif. RV9130 - Gardenia - Appartamento 3 camere ristrutturato (Rif.RV9130) Appartamento di 140 mq sito al secondo piano in palazzina faccia vista di soli tre piani, servito da scale condominiali. La zona giorno si compone di un ingresso arredabile, un ampio e luminoso open space con zona living e cucina a vista, oltre a due balconi con doppio accesso. La zona notte ospita due camere da letto matrimoniali, una camera tre quarti e due bagni, entrambi finestrati. L'appartamento, pronto per essere abitato, è stato ristrutturato nel 2006 con rifacimento completo di tutta l'impiantistica, rivestimenti, pavimenti e bagni; dispone di porta blindata, infissi in legno e split per l'aria condizionata. La palazzina, realizzata a metà degli anni '70, si presenta in ottime condizioni di manutenzione e comprende sole tre unità abitative, il che garantisce l'assenza di spese condominiali e la presenza di utenze autonome. Completano la proprietà una cantina e un garage singolo al piano terra, oltre a una soffitta nel piano sottotetto. L'immobile si trova in una zona tranquilla, vicina al centro, comodamente raggiungibile a piedi e ben servita dai servizi essenziali. Classe energetica "E". Nonostante l'ottimo stato conservativo, per chi desiderasse un tocco di contemporaneità in più, è disponibile in agenzia un progetto di restyling studiato per reinterpretare gli spazi in chiave ancora più moderna. Per informazioni e appuntamenti Agenzia Via Cadoppi 8/B (RE)- Tel: 0522512431 (anche messaggi WhatsApp) - Mail agenzia4@piazzaffarisrl.it

Video

Virtual Tour

Altre caratteristiche

Stato Immobile
Ristrutturato
Anno costruzione
1975
Vani
4
Tipo di cucina
Aperta
Balconi
1
Terrazze / Logge
1
Piano
2
Piani totali della palazzina
3
Tipologia Immobile
Appartamento
Categoria Immobile
Case e Appartamenti
Contatta Agenzia
Proposto da: PIAZZA AFFARI Servizi Immobiliari

Quotazioni immobiliari per Via Della Costituzione 6 - Reggio Emilia