115 mq
3
2
Giardino privato
Autonomo
In attesa di certificazione

Descrizione

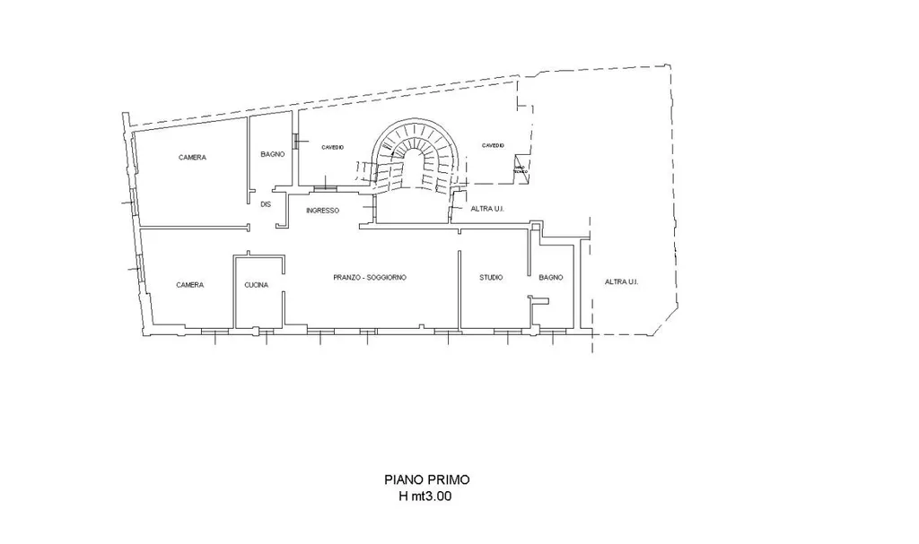
Rif. RV8097 - Centro storico - Appartamento tre camere (Rif.RV8097) Appartamento di circa 115 mq, situato al primo piano di una palazzina di soli tre piani servita da ascensore, nel pieno cuore del centro storico. L'immobile è inserito in un contesto residenziale signorile con sole 5 unità, ben abitato e ottimamente servito. L'abitazione, caratterizzata da spazi generosi, si compone come segue: ingresso che si apre sulla zona giorno, dove troviamo la zona pranzo/soggiorno, una cucina abitabile e un pratico studio con bagno finestrato cieco. La zona notte è separata da un disimpegno, ospita due ampie camere da letto matrimoniali e un secondo bagno finestrato, con affaccio su un tranquillo cavedio interno. L'immobile si presenta in ottimo stato e dispone di impianti autonomi con caldaia a metano, porta blindata, pavimenti in parquet e infissi in legno. Al piano interrato la proprietà include una cantina di circa 10 mq. Questa soluzione è ideale per chi cerca un'abitazione di ampia metratura e desidera vivere il charme del centro storico con il massimo comfort e la comodità di un contesto signorile e servito. Classe energetica in elaborazione. Per informazioni e appuntamenti Agenzia Via Cadoppi 8/B (RE)- Tel: 0522 512431 (anche messaggi WhatsApp) - Mail segreteria@piazzaffarisrl.it

Virtual Tour

Altre caratteristiche

Stato Immobile
In ottime condizioni
Vani
4
Tipo di cucina
Abitabile
Balconi
1
Terrazze / Logge
1
Piano
1
Piani totali della palazzina
3
Ascensore
Tipologia Immobile
Appartamento
Categoria Immobile
Case e Appartamenti
Contatta Agenzia
Proposto da: PIAZZA AFFARI Servizi Immobiliari

Quotazioni immobiliari per Via Dei Due Gobbi - Reggio Emilia