125 mq
3
1
Garage/Posto Auto
Autonomo
G

Descrizione

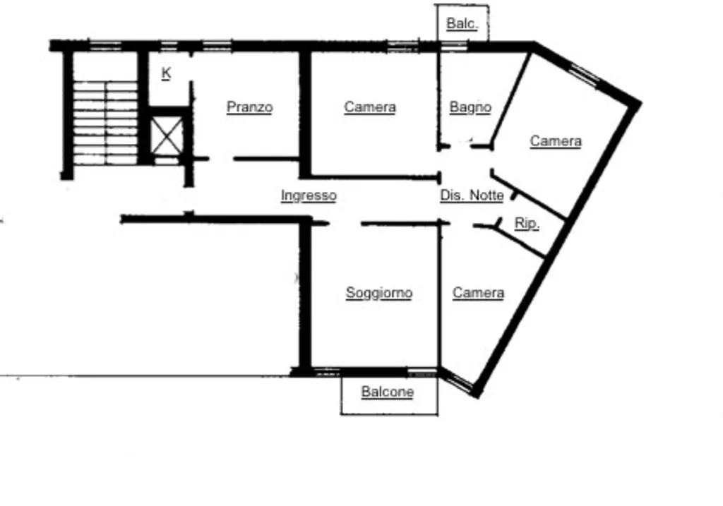
Rif. ATR8014 - ATR8014 Mirabello: In fabbricato mattone a vista, luminoso appartamento ristrutturato dotato di ampi spazi interni l'immobile, servito da ascensore è composto da un ingresso cucina/pranzo, soggiorno con balcone, disimpegno notte, due camere matrimoniali, una camera 3/4, bagno con balconcino, ripostiglio con possibilità di ricavare secondo servizio/lavanderia; una cantina, una soffitta, un garage ed un posto auto assegnato.Impianti completamente rifatti, Doppi vetri con infissi in alluminio, Marmette ingresso e soggiorno, ceramica cucinotto, pranzo e bagno, Parquet camere. Climatizzato, Soffitto insonorizzato.

Altre caratteristiche

Stato Immobile
In ottime condizioni
Vani
5
Balconi
2
Posto auto
Nessuno
Piano
3
Ascensore
Cantina
Tipologia Immobile
Appartamento
Categoria Immobile
Case e Appartamenti
Contatta Agenzia
Proposto da: ANTEPRIMA IMMOBILIARE

Quotazioni immobiliari per Mirabello - Reggio Emilia