109 mq
2
1
Centralizzato - Contacalorie
G

Descrizione

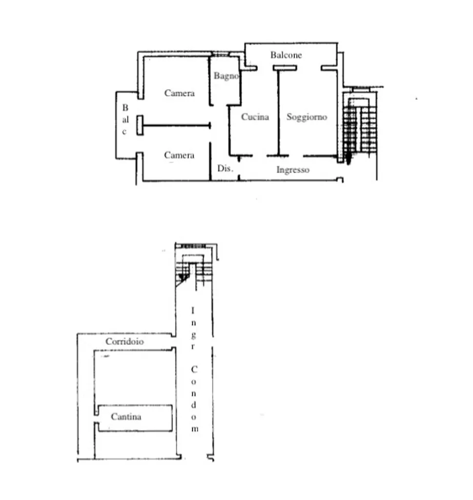
Rif. REM760 - RIF. 9.482 SAN PROSPERO: In posizione servita ed al contempo tranquilla, posto all'interno di una piccola palazzina facciavista spazioso appartamento posto al piano secondo e composto da ingresso arredabile, soggiorno con balcone, cucina abitabile, disimpegno notte, due camere matrimoniali, con secondo balcone, bagno con finestra, cantina e garage singolo al piano terra. Rich. euro 129.000,00

Altre caratteristiche

Stato Immobile
In buone condizioni
Vani
5
Tipo di cucina
Non Indicato
Posto auto
Riservato
Piano
2
IPE
210
Tipologia Immobile
Appartamento
Categoria Immobile
Case e Appartamenti
Contatta Agenzia
Proposto da: 42100 Immobiliare

Quotazioni immobiliari per San Prospero - Reggio Emilia