130 mq
3
2
Garage/Posto Auto
Arredato
Autonomo
E

Descrizione

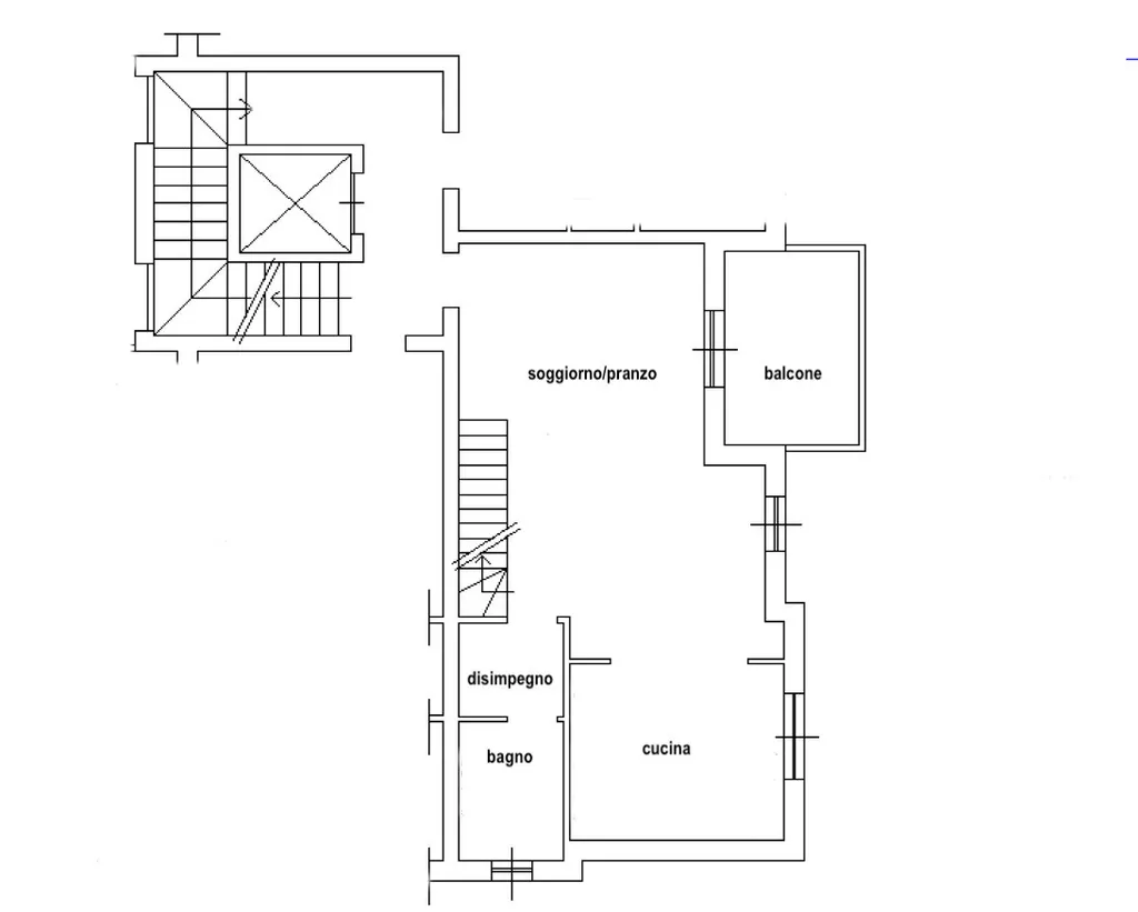
Rif. REM755 - Rif. 9479 PIEVE: In delizioso contesto immerso nel verde, proponiamo bellissima maisonette posta al 2 piano + mansarda, arredata e composta da: -P2: salone con loggia, cucina abitabile, ripostiglio e bagno. - PM: 2 matrimoniali + 1/2 camera e bagno. Cantina e garage al piano interrato. Tutto parquet tranne bagni, zanzariere, A/C, caldaia a nuova ecc. Rich. euro 259.000,00 Clase "E"

Altre caratteristiche

Stato Immobile
In ottime condizioni
Vani
5
Tipo di cucina
Abitabile
Posto auto
Riservato
Piano
2
IPE
105
Spese condominiali
€ 600 €/anno
Ascensore
Cantina
Tipologia Immobile
Appartamento
Categoria Immobile
Case e Appartamenti
Contatta Agenzia
Proposto da: 42100 Immobiliare

Quotazioni immobiliari per Pieve Modolena - Reggio Emilia