Descrizione
Rif. RV9307 - Località San Rigo - Maisonette con tre camere (Rif.RV9307)
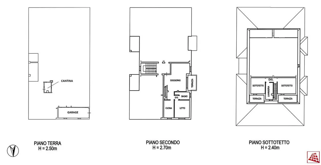
Appartamento sviluppato su due livelli, posto al secondo e ultimo piano e servito da scale condominiali.
L'abitazione si apre su una luminosa zona living di 30 mq che vanta un affaccio diretto su una terrazza di 8 mq esposta ad ovest, spazio ideale per godersi suggestive cene al tramonto.
Il piano principale prosegue con una cucina abitabile, una camera da letto matrimoniale e un bagno finestrato.
Attraverso una scala interna in legno si accede al piano superiore mansardato, con un'altezza confortevole di 2,40 metri.
Quest'area comprende un disimpegno, due ulteriori camere da letto matrimoniali, entrambe servite da una terrazza privata coperta, e un secondo bagno con funzione di lavanderia.
Le ampie metrature e la presenza di tre camere rendono la casa perfetta per ospitare una famiglia, offrendo inoltre logge coperte che si prestano a essere chiuse con vetrate per ricavare un angolo studio o una palestra privata.
Le finiture sono di buon livello, con pavimentazioni in gres nella zona giorno e raffinato parquet in mansarda.
L'immobile è dotato di infissi con doppi vetri, zanzariere, tenda da sole motorizzata e l'arredo dei bagni incluso.
Per quanto riguarda il comfort termico, l'abitazione è stata migliorata con caldaia e split in pompa di calore (caldo/freddo) installati nel 2024, garantendo utenze autonome e basse spese condominiali.
L'immobile si trova all'interno di una piccola palazzina di recente costruzione, circondata dal verde e con sole otto unità abitative.
La proprietà include infine una cantina e un garage doppio in lunghezza al piano terra.
Il quartiere è particolarmente residenziale e tranquillo, all'interno di una strada chiusa al traffico; la vicinanza a Rivalta permette di raggiungere comodamente, in pochi minuti, tutti i principali servizi.
Consegna prevista tra Novembre e Dicembre 2026.
Classe Energetica "D".
Open House su appuntamento Sabato 21 Marzo, per informazioni Agenzia di Albinea (RE) - Tel: 0522569141 - Mail: residenziale@piazzaffarisrl.it