155 mq
3
2
Garage/Posto Auto
Autonomo
C

Descrizione

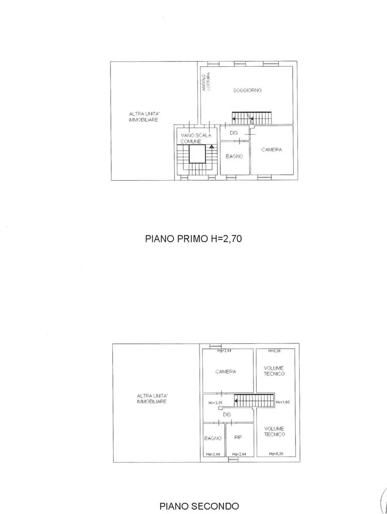
Rif. BV 3059 - L'attico in vendita nel comune di Castellarano, in località S.Valentino rappresenta un'opportunità unica per chi desidera vivere in una zona tranquilla e ben collegata. Situato in una posizione privilegiata, l'immobile costruito a nuovo a mai abitato; offre un panorama mozzafiato che si estende fino all'orizzonte. Con una superficie di 155 metri quadrati commerciali e sei vani, l'attico si distingue per la sua luminosità e la sua eleganza, grazie anche alla classe energetica C che garantisce un elevato livello di comfort abitativo. Il prezzo rappresenta un ottimo investimento per chi cerca un immobile di livello in una delle zone più ricercate di Castellarano. Dotato di tutti i comfort e di ottime finiture, l'attico offre ampi spazi abitativi e una distribuzione intelligente degli ambienti, garantendo privacy e funzionalità. L'abitazione si suddivide su due livelli collegati da scala interna dove al piano primo troviamo: soggiorno di grandi dimensioni con cucina a vista, disimpegno, camera matrimoniale e bagno. Al piano superiore camera matrimoniale, camera singola, vano sottotetto disimpegno e bagno. Completano l'immobile il garage al piano terra e una cantina di trenta mq. al piano interrato. Questa soluzione abitativa rappresenta la scelta ideale per chi desidera vivere in un contesto esclusivo e riservato, senza rinunciare alla comodità dei servizi e alla vicinanza ai principali centri urbani della zona. Non lasciarti sfuggire questa occasione unica per acquistare un attico di prestigio a Castellarano. LIBERO SUBITO. CLASSE ENERGETICA: C

Altre caratteristiche

Stato Immobile
Nuovo
Anno costruzione
2011
Vani
6
Tipo di cucina
Aperta
Posto auto
Presente
Piano
1
Cantina
Ripostiglio
Attico
Tipologia Immobile
Appartamento
Categoria Immobile
Case e Appartamenti
Contatta Agenzia
Proposto da: MEDIA CASE Real Estate SCANDIANO

Quotazioni immobiliari per Via Ara Montebello 79 - Castellarano