224 mq
5
3
Garage/Posto Auto
Giardino privato
Arredato
Autonomo

Descrizione

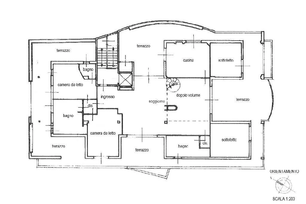
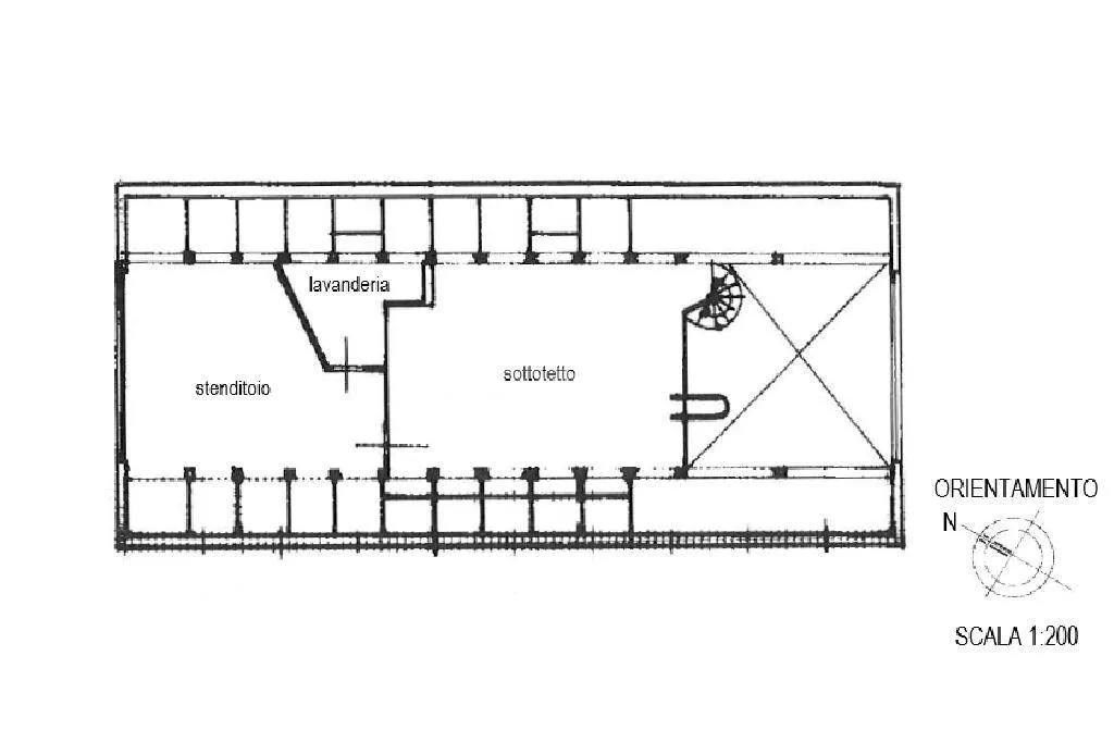
Rif. RV4924 - Pappagnocca - Attico di pregio con terrazza (Rif.RV4924) Attico esclusivo di oltre 224 mq disposti su due livelli collegati internamente da scala elicoidale di design, caratterizzato da spazi ampi e comodamente fruibili illuminati dalla luce naturale durante tutta la giornata. Si raggiunge l'immobile tramite ascensore privato che arriva direttamente all'abitazione garantendo comodità e privacy. Al primo livello si trovano un ampio ingresso che conduce alla grande zona living con suggestivo doppio volume e grandi vetrate che offrono l'accesso al terrazzo coperto che circonda tutta la proprietà; sempre a questo piano è presente la cucina, separata e completamente attrezzata, tre spaziose camere da letto e tre bagni finestrati. Salendo al secondo livello si incontrano uno studio con affaccio sul piano sottostante, una camera da letto ed un bagno privato, tutti con soffitti a volta. Le finiture eleganti e prestigiose sono presenti in ogni parte della proprietà, dal pavimento ai dettagli in legno pregiato, le pareti sono dipinte con colori ricercati ed accostamenti di tonalità raffinate studiati in base al mobilio ma che possono facilmente essere modificati in base al proprio gusto personale. L'attico è circondato da ampie vetrate panoramiche che illumino gli ambienti e creano un'atmosfera unica in diversi momenti della giornata. L'ampio terrazzo della proprietà è uno spazio ideale per rilassarsi all'aria aperta, organizzare pranzi e cene all'aperto o semplicemente prendere il sole in uno spazio privato che garantisce privacy, grazie alla superficie così vasta, ci sono molte possibilità per personalizzare ed arredare questo spazio esterno secondo le proprie esigenze. Completano la proprietà un garage doppio in larghezza e due cantine. Un'opportunità unica per chi desidera vivere nell'eleganza e nel comfort più esclusivi a due passi dal centro città e a tutti i servizi principali. Classe energetica in elaborazione. Per informazioni Sede di Via Cadoppi 0522512431 (anche WhatsApp) - mail agenzia4@piazzaffarisrl.it

Altre caratteristiche

Stato Immobile
In buone condizioni
Anno costruzione
1996
Vani
6
Tipo di cucina
Abitabile
Balconi
1
Terrazze / Logge
1
Piano
Su più livelli
Piani totali della palazzina
4
Ascensore
Attico
Tipologia Immobile
Appartamento
Categoria Immobile
Case e Appartamenti
Contatta Agenzia
Proposto da: PIAZZA AFFARI Servizi Immobiliari

Quotazioni immobiliari per Via Martiri Di Cervarolo - Reggio Emilia