439

Descrizione

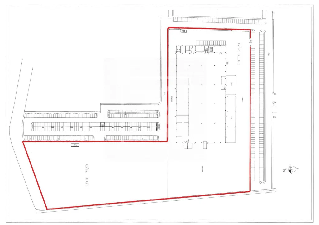
Rif. VJ1068 - Luzzara - Insediamento produttivo con terreno (Rif.VJ1068) Insediamento produttivo posto in una zona industriale, con una superficie fondiaria complessiva di 34.681 mq. Lo stabilimento offre un'area produttiva di circa 8.875 mq con un'altezza di 6 metri e servita da tre portoni carrai che ottimizzano ogni operazione logistica. La pavimentazione è realizzata in calcestruzzo ad alta resistenza, con un importante spessore di 15 cm e un robusto sottofondo di 60 cm, ideale per sostenere carichi elevati; anche il soppalco di circa 439 mq si distingue per l'elevata portanza di 800 kg/mq. L’area direzionale e di servizio, di circa 439 mq, vanta un ingresso indipendente con reception, due vani ufficio, ed è completa di spogliatoi, servizi igienici e centrale termica dedicata. All'esterno, la proprietà dispone di un’ampia area cortiliva di circa 11.484 mq interamente pavimentata e recintata, che conserva un’importante potenzialità di sviluppo grazie a una capacità edificatoria residua di circa 2.723 mq. Completano il compendio una tettoia di circa 774 mq e due manufatti tecnici adibiti a cabine elettriche di circa 132 mq, con trasformatore da 1.250 kVA, fondamentali per l'autonomia energetica del complesso. La struttura si presenta in eccellenti condizioni generali, si presta per la sua tipologia costruttiva all'installazione di impianto fotovoltaico in copertura, dispone di impianti a norma e performanti, garantendo una soluzione operativa immediatamente utilizzabile senza necessità di interventi. La proprietà comprende anche un'importante area di espansione attigua di 12.905 mq, attualmente allo stato di campagna ma con una rilevante capacità edificatoria di circa 7.137 mq, un'opportunità strategica per futuri ampliamenti. Il terreno è immediatamente cantierabile in quanto già urbanizzato e dotato di tutte le forniture necessarie (gas, acqua e luce), con accesso diretto e agevole dalla viabilità esistente. La posizione strategica all'interno del comparto industriale, unita all'ottimo collegamento con le principali vie di comunicazione, garantisce al complesso massima visibilità e facilità di raggiungimento per i mezzi pesanti. La zona, servita da infrastrutture moderne e servizi logistici, assicura un contesto operativo pratico ed efficiente, ideale per lo sviluppo di diverse attività produttive o logistiche. Per informazioni e appuntamenti Agenzia Via Cadoppi 8/A (RE)- Tel: 0522512431 (anche messaggi WhatsApp) - Mail: commerciale@piazzaffarisrl.it

Altre caratteristiche

Categoria Immobile
Commerciali e Attività
Tipologia Immobile
Capannone
Metri Quadri
34681 mq
Ultimo piano
Area uffici
Classe energetica
In attesa di certificazione
Stato Immobile
In ottime condizioni
Contatta Agenzia
Proposto da: PIAZZA AFFARI Servizi Immobiliari

Quotazioni immobiliari per Via Gianni Rodari 10 - Luzzara