540 mq
8
12
Garage/Posto Auto
Giardino privato
Autonomo
A4

Descrizione

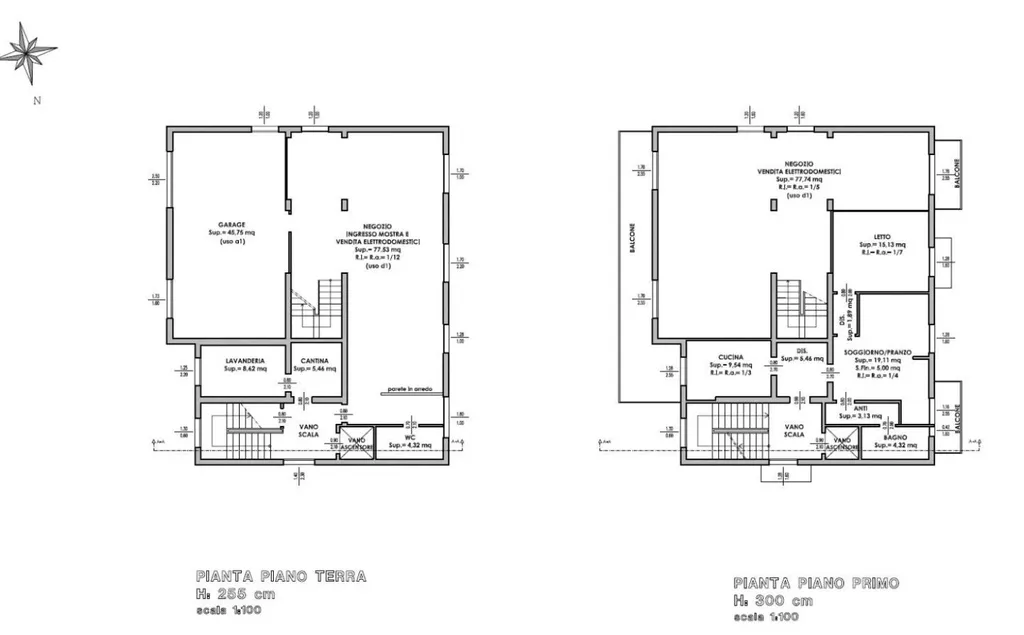
Rif. RV4446 - Gardenia - Palazzo con 4 unità (Rif. RV4446) Palazzo composto da quattro unità, in zona Gardenia a Reggio Emilia, completo di ascensore per raggiungere tutti i piani e recentemente ristrutturato. La palazzina si sviluppa su 5 piani così distribuiti: al piano terra è presente un vano commerciale uso negozio, bagno finestrato, lavanderia e cantine. Al piano primo, secondo vano commerciale uso negozio con due balconi, disimpegno, soggiorno con balcone, cucina abitabile, camera da letto matrimoniale, antibagno e bagno finestrato. Al piano secondo appartamento composto da soggiorno e cucina abitabile con ampio terrazzo, disimpegno, quattro camere da letto (di cui due con balcone), ripostiglio, antibagno e bagno con finestra. Al piano terzo secondo appartamento composto da ampio ingresso, soggiorno con balcone, cucina abitabile e sala da pranzo con accesso al terrazzo, disimpegno zona notte, due camere (una dotata di cabina armadio, l'altra di bagno privato finestrato), entrambe con accesso al balcone, antibagno e bagno con finestra. Infine all'ultimo piano ampio vano sottotetto isolato e sala macchine. L'abitazione è stata oggetto di recente ristrutturazione con bonus 110, ed è dotata di impianto fotovoltaico, climatizzatori con pompa di calore, porte blindate, zanzariere, infissi con vetri tripli di ultima generazione e 4 colonne esterne di ricarica per auto elettriche. Completa la proposta una cantina al piano interrato, 4 garage al piano terra ed un giardino condominiale di circa 500 mq, curato e recintato. L'immobile è sito a breve distanza dal centro storico e dalla stazione Medio Padana, ideale anche come investimento. Classe energetica A4.

Altre caratteristiche

Stato Immobile
Ristrutturato
Anno costruzione
1975
Vani
15
Tipo di cucina
Abitabile
Balconi
1
Terrazze / Logge
1
Piano
1
Piani totali della palazzina
5
Ascensore
Tipologia Immobile
Stabile / Palazzo
Categoria Immobile
Case e Appartamenti
Contatta Agenzia
Proposto da: PIAZZA AFFARI Servizi Immobiliari

Quotazioni immobiliari per Via Guido Riccio Fogliani - Reggio Emilia