160 mq
2
2
Garage/Posto Auto
Autonomo
A4

Descrizione

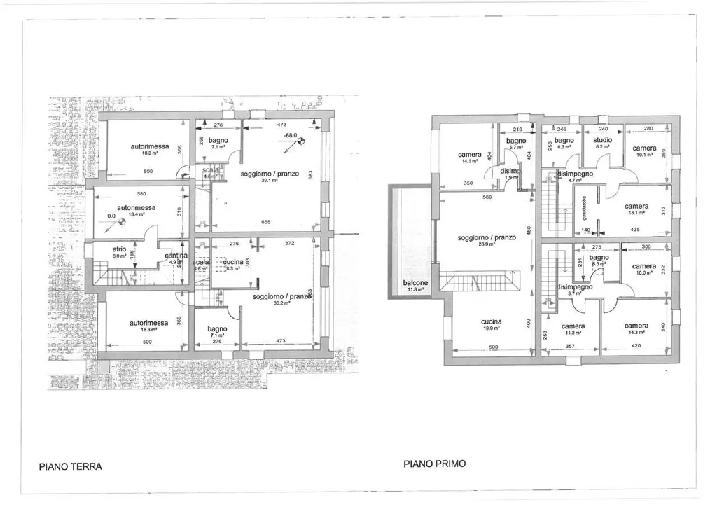
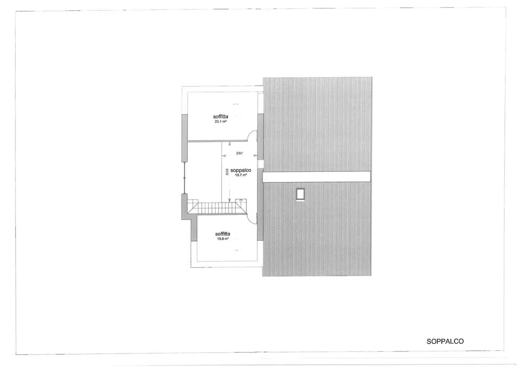
Rif. V000294 - Abbinata in fase di realizzazione, in contesto di tre unità abitative, composta da piano terra, ingresso indipendente, lavanderia, autorimessa, al primo piano sala con ampia portafinestra dove si raggiunge il balcone, cucina abitabile, disimpegno, una camera matrimoniale, bagno, da scala interna si raggiunge un soppalco con doppio volume sulla sala, una camera, bagno. Classe energetica A4 Per informazioni Valerio 348/7302005 CLASSE ENERGETICA:

Altre caratteristiche

Stato Immobile
In costruzione
Anno costruzione
2026
Vani
6
Tipo di cucina
Abitabile
Balconi
1
Posto auto
Nessuno
Condizionamento
Installato
Pannelli solari / fotovoltaico
Lavanderia
Tipologia Immobile
Porzione di casa
Categoria Immobile
Case e Appartamenti
Contatta Agenzia
Proposto da: STUDIO DUGONI IMMOBILIARE

Quotazioni immobiliari per Vezzano sul Crostolo