115 mq
3
2
Garage/Posto Auto
Arredato
Teleriscaldamento
E

Descrizione

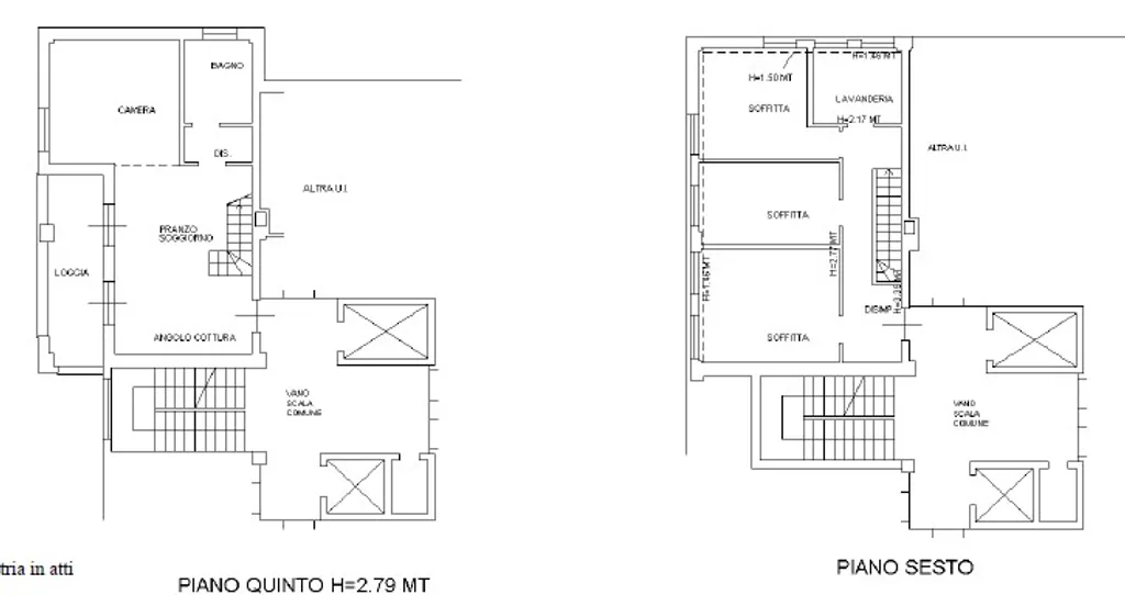
Rif. 2841 - RIF. 2841 Proponiamo in esclusiva in posizione servita e a 2 passi dal centro, prestigiosa maisonette completamente ristrutturata nel 2018 situata al 5° e ultimo piano servito da ascensore. Limmobile si sviluppa su due livelli: al piano principale troviamo ingresso su luminoso soggiorno con ampia loggia esposta a sud ovest, cucina separata, antibagno e bagno. Il piano superiore, collegato da scala interna ma accessibile anche tramite scala condominiale con ascensore, ospita la zona notte mansardata composta da una camera matrimoniale, una camera 3/4, una camera singola e un bagno con vasca. Garage e una cantina. Porta blindata, aria condizionata, pregiato parquet in rovere - L' immobile viene venduto completo di tutto l'arredamento esistente tende, aria condizionata, lampadari, armadi su misura- zanzariere nuove Per info e visite Manuela 333/4300253

Planimetrie

Altre caratteristiche

Stato Immobile
In ottime condizioni
Vani
4
Balconi
1
Posto auto
Riservato
Piano
5
Ultimo piano
IPE
221
Spese condominiali
€ 1000 €/anno
Ascensore
Cantina
Tipologia Immobile
Maisonette
Categoria Immobile
Case e Appartamenti
Contatta Agenzia
Proposto da: IMMOBILIARE TIMAVO

Quotazioni immobiliari per Gardenia - Reggio Emilia