140 mq
2
2
Garage/Posto Auto
Autonomo
A4

Descrizione

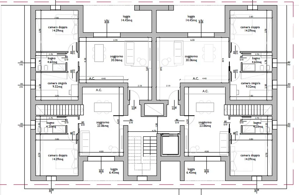
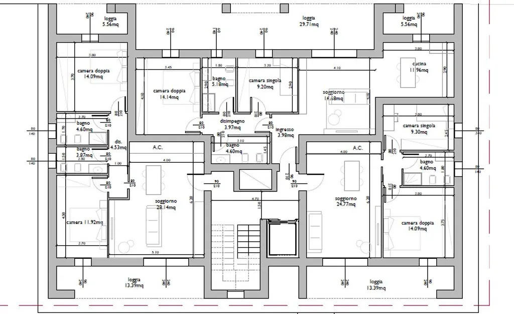
Rif. 787/1 - Rif. 787/1 - In bella zona residenziale verde e tranquilla a Fogliano, sará costruita a breve una palazzina elegante e moderna in classe energetica a4, attenta e rispettosa del comfort abitativo. Saranno realizzati appartamenti con giardino o balconi/terrazzi in metrature e tipologie adatte a diverse esigenze. Ogni abitazione disporrá di un garage e di una cantina compresi e nella palazzina verranno destinati ad uso comune alcuni locali per comoditá (lavanderia) e/o depositi ( bici). In esclusiva proponiamo ad esempio questa maisonette (nr. 1) di 140,50 mq disposta su 2 livelli con 2 camere, 2 bagni e un giardino privato di 92,30 mq.... a Euro 414.000 Per maggiori informazioni e per visionare il progetto completo potete contattarci allo 0522/431030.

Planimetrie

Altre caratteristiche

Stato Immobile
Nuovo
Tipo di cucina
Angolo Cottura
Posto auto
Nessuno
Metratura giardino
92
Piano
Terra
IPE
1
Ascensore
Cantina
Tipologia Immobile
Maisonette
Categoria Immobile
Case e Appartamenti
Contatta Agenzia
Proposto da: IMMOBILIARE DEI MILLE

Quotazioni immobiliari per Fogliano - Reggio Emilia