630 mq
6
2
Garage/Posto Auto
Giardino privato
Non presente

Descrizione

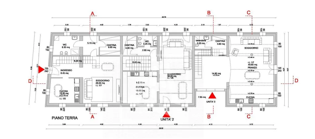
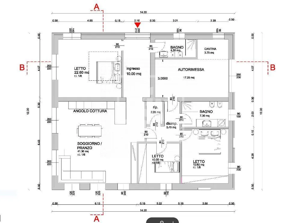
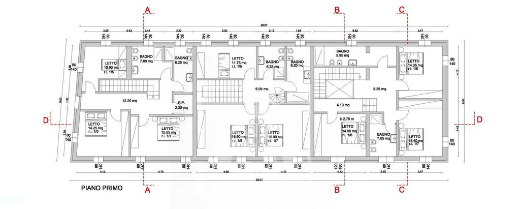
Rif. RV0639 - Sesso - Rustico con terreno (Rif.RV0639) Rustico da ristrutturare che offre la possibilità di creare una splendida corte privata con quattro unità abitative. La superficie complessiva è di 630 mq con una struttura ancora da valorizzare, ma che può offrire ampi spazi e potenzialità di personalizzazione, creando un complesso residenziale funzionale ed accogliente. La posizione è strategica poiché immersa nel verde tra la località di Sesso e la zona di Mancasale comoda quindi a tutte le principali vie di comunicazione ma allo stesso tempo riservata e tranquilla. Ideale per chi desidera investire in un progetto di ristrutturazione che combini tradizione e modernità, creando una soluzione dagli ambienti unici e su misura per le diverse esigenze; una proprietà interessante per sviluppare il progetto di un piccolo residence o di una residenza multifamiliare composta da casa singola con giardino e tre villette su due livelli. Presso i nostri uffici è disponibile e visionabile tutta la documentazione del progetto. Classe energetica in elaborazione. Per informazioni Agente Immobiliare Chiara Ghiretti mail: chiara.ghiretti@piazzaffarisrl.it - tel: 3382867349

Altre caratteristiche

Stato Immobile
Da ristrutturare
Anno costruzione
1920
Vani
10
Tipo di cucina
Cucinotto
Balconi
1
Terrazze / Logge
1
Piano
Su più livelli
Piani totali della palazzina
2
Tipologia Immobile
Rustico / Casale
Categoria Immobile
Case e Appartamenti
Contatta Agenzia
Proposto da: PIAZZA AFFARI Servizi Immobiliari

Quotazioni immobiliari per Via Ugo Bassi 15 - Reggio Emilia