170 mq
3
3
Garage/Posto Auto
Giardino privato
Autonomo
In attesa di certificazione

Descrizione

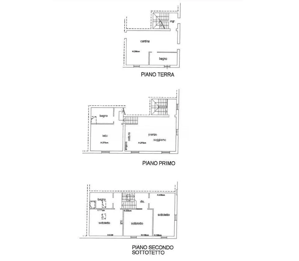
Rif. RV5588 - Mediopadana - Porzione di rustico (Rif. RV5588) Porzione di splendido rustico completamente ristrutturato e quindi pronto per essere abitato, con doppio ingresso e giardino di proprietà su due lati. La spaziosa abitazione si estende su una superficie totale di circa 170 metri quadrati, suddivisi su più livelli, e strutturati per essere abitati anche da nuclei famigliari numerosi. Al piano terra si trova una spaziosa taverna composta da soggiorno con angolo cottura, bagno ed accesso al giardino privato di circa 300 metri quadrati con spazioso porticato che si può chiudere nelle stagioni invernali; al piano si trova anche la zona servizi. Salendo al primo piano si incontra la zona giorno principale composta da ampio soggiorno con moderna cucina a vista, camera matrimoniale e bagno. Al secondo piano si trova la restante parte della zona notte con due camere da letto matrimoniali con tetto in legno a vista sbiancato, bagno con velux e lavanderia. La ristrutturazione dell'immobile risale al 2015 e ha previsto l'installazione di pannelli fotovoltaici, impianto di aria condizionata, inferriate, nuove porte e nuovi rivestimenti. I bagni sono stati completamente rifatti e sono stati arredati tutti gli ambienti. Esternamente, in corpo staccato, è parte della proprietà un garage doppio. La porzione è inserita all'interno di un rustico in ottime condizioni composto complessivamente da tre proprietà, le spese condominiali per le parti comuni ammontano a circa 100 euro all'anno. Zona raggiungibile comodamente con i mezzi pubblici e vicina a tutti i servizi della città. Porzione ideale per chi desidera spazi ampi e confortevoli con la comodità di spazio verde privato. Per informazioni Sara.

Altre caratteristiche

Stato Immobile
In ottime condizioni
Vani
5
Tipo di cucina
Angolo Cottura
Metratura giardino
300
Piani totali della palazzina
2
Spese condominiali
€ 10 €/mese
Tipologia Immobile
Rustico / Casale
Categoria Immobile
Case e Appartamenti
Contatta Agenzia
Proposto da: PIAZZA AFFARI Servizi Immobiliari

Quotazioni immobiliari per Via Errio Petrella 18/2 - Reggio Emilia