90 mq
2
1
Garage/Posto Auto
Autonomo
In attesa di certificazione

Descrizione

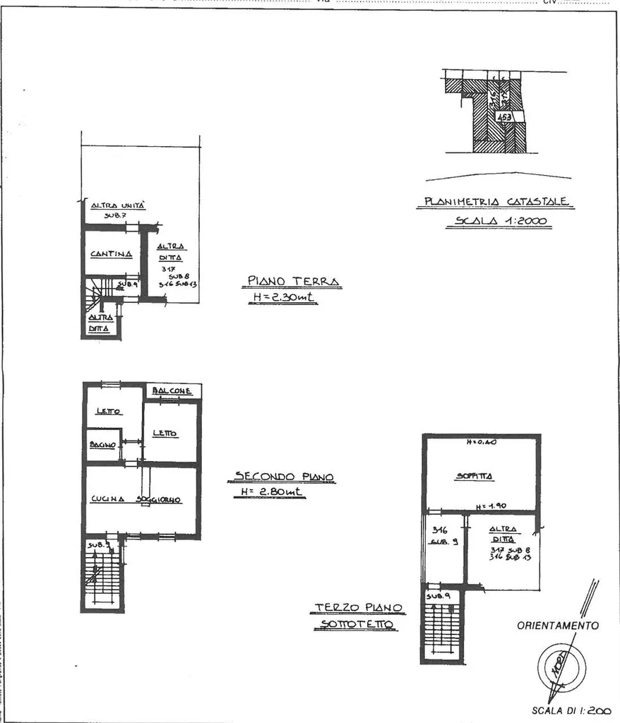
Rif. BV 2070 - L'appartamento in vendita a rappresenta un'ottima opportunità per chi desidera acquistare una soluzione abitativa confortevole e ben posizionata. Situato in pieno centro a roteglia, zona centrale e ben servita, l'immobile si estende su una superficie di 90 mq e dispone di 3 vani, ideali per una famiglia o una coppia in cerca di spazio sufficiente per vivere in comodità. L'immobile posto al secondo piano si suddivide in: soggiorno con cucina a vista, camera matrimoniale con balcone, camera singola, e bagno. Al terzo ed ultimo: soffitta di pertinenza; conclude la proprietà al piano terra cantina ed autorimessa. Il prezzo di vendita rappresenta un ottimo investimento per chi cerca un'abitazione ad un costo accessibile con zero spese condominiali. Non esitate a contattarci per ulteriori informazioni e per organizzare una visita all'appartamento, saremo lieti di mostrarvi tutte le sue potenzialità e di accompagnarvi in un percorso di acquisto sicuro e trasparente. LIBERO SUBITO ! CLASSE ENERGETICA: In fase di valutazione

Altre caratteristiche

Stato Immobile
In buone condizioni
Anno costruzione
1950
Vani
3
Tipo di cucina
Aperta
Balconi
1
Posto auto
Nessuno
Piano
2
Piani totali della palazzina
3
Tipologia Immobile
Appartamento
Categoria Immobile
Case e Appartamenti
Contatta Agenzia
Proposto da: MEDIA CASE Real Estate SCANDIANO

Quotazioni immobiliari per Via Radici in monte 58 - Roteglia - Castellarano