113 mq
4
2
Garage/Posto Auto
Giardino privato
Autonomo
D

Descrizione

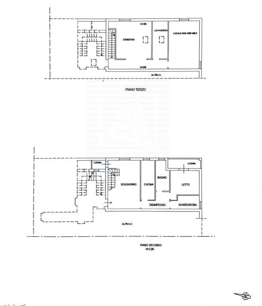
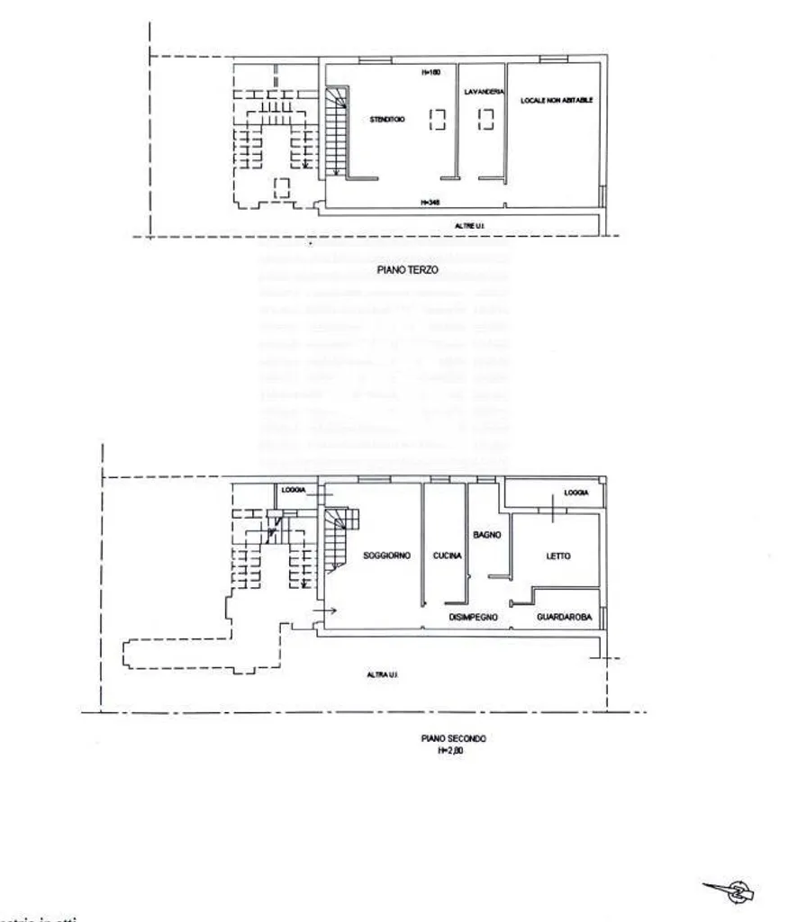
Rif. RV1235 - Rivalta - Maisonette con doppio Ingresso (Rif.RV1235) Appartamento su due livelli, posto al secondo e terzo piano, in palazzina raggiungibile da scale condominiali. L'immobile è caratterizzato da un doppio ingresso dal vano scala comune, compreso di porte blindate. Il piano secondo comprende un soggiorno, cucina abitabile, due balconi, camera da letto e guardaroba. Il piano superiore ospita un ampio locale sottotetto e lavanderia. Il riscaldamento è autonomo ed è presente l'impianto dell'aria condizionata; in termini di finiture, l'abitazione include pavimenti in gres porcellanato e zanzariere. La palazzina, costruita a fine anni '90, comprende nove unità abitative con spese condominiali contenute, circa € 70 mensili. Completano la proprietà una cantina ed un garage al piano terra. Classe energetica D.

Altre caratteristiche

Stato Immobile
In discrete condizioni
Anno costruzione
1998
Vani
3
Tipo di cucina
Abitabile
Balconi
1
Terrazze / Logge
1
Piano
2
Piani totali della palazzina
3
Spese condominiali
€ 66 €/mese
Tipologia Immobile
Appartamento
Categoria Immobile
Case e Appartamenti
Contatta Agenzia
Proposto da: PIAZZA AFFARI Servizi Immobiliari

Quotazioni immobiliari per Via Roberto Ardigo' - Reggio Emilia