6

Descrizione

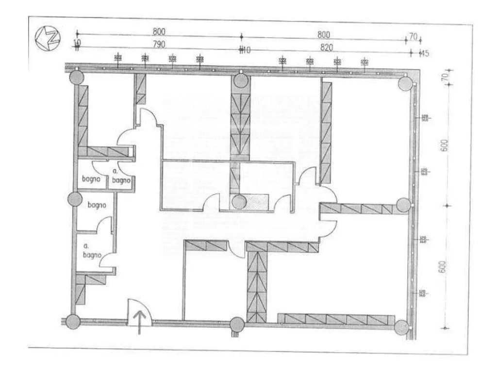
Rif. KA0372 - Reggio Nord - Ufficio (Rif. KA0372) In centro direzionale posto al piano secondo servito da ascensore, ufficio di mq 212 composto da ingresso con reception, sei vani ufficio suddivisi mediante pareti attrezzate, archivio, piccola cucina e doppi servizi. Gli interni sono luminosi e ben distribuiti, con ampie finestre, munite di veneziane, che offrono una piacevole illuminazione naturale. Riscaldamento e raffrescamento con ventilconvettori, controsoffitti con corpi illuminanti e rete dati. Tutti gli impianti sono a norma. Ottima disponibilità di parcheggi. L'immobile, essendo parzialmente arredato è immediatamente disponibile, una soluzione completa e funzionale per chi desidera lavorare in un ambiente moderno e confortevole. Sito nella dinamica zona di Mancasale è ben fornito dai più svariati servizi, facilmente individuabile e ben collegata con il centro della città.

Altre caratteristiche

Categoria Immobile
Commerciali e Attività
Tipologia Immobile
Ufficio / Studio
Metri Quadri
212 mq
Ultimo piano
Classe energetica
E
Riscaldamento
Centralizzato - Contacalorie
Piani totali della palazzina
2
Piano
2
Bagni
2
Stato Immobile
In buone condizioni
Contatta Agenzia
Proposto da: PIAZZA AFFARI Servizi Immobiliari