170 mq
3
2
Giardino privato
Autonomo
In attesa di certificazione

Descrizione

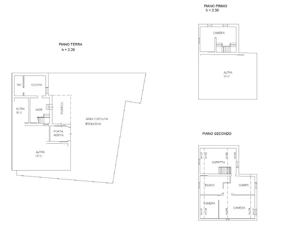
Rif. RV4329 - Albinea. Albinea - Porzione di abbinata (Rif. RV4329)Porzione ad angolo di casa abbinata, situata all'interno di borgo antico, con area cortiliva privata di 200 mq circa recintata e chiusa da cancello automatico. L'immobile è stato ristrutturato nel 2013 mantenendo intatte tutte le caratteristiche originali come le con travi a vista, le pareti in sasso, pergolati ombreggianti esposti a sud. Al piano terra si trovano portico esposto a sud, ingresso su studio, camera da letto matrimoniale con bagno in camera, (da trasformare eventualmente in cucina). Salendo al primo piano sono presenti cucina open space oppuure soggiorno, con loggia accessibile anche dall'esterno. Infine al piano mansardato si trovano soggiorno, ripostiglio, bagno con doccia, n. 2 camere matrimonaili con velux. Terrazzo Solarium accessibile momentaneamente dall'esterno con scala a chiocciola, piccolo basso servizio per deposito attrezzatura o motorini (no garage), centrale termica.

Altre caratteristiche

Stato Immobile
In buone condizioni
Anno costruzione
1900
Vani
4
Tipo di cucina
Aperta
Balconi
1
Terrazze / Logge
1
Piano
Terra
Piani totali della palazzina
3
Tipologia Immobile
Villa abbinata
Categoria Immobile
Case e Appartamenti
Contatta Agenzia
Proposto da: PIAZZA AFFARI Servizi Immobiliari

Quotazioni immobiliari per Via Monsignor L. Tondelli 20/b - Albinea