418 mq
4
3
Garage/Posto Auto
Giardino privato
Arredato
Autonomo
D

Descrizione

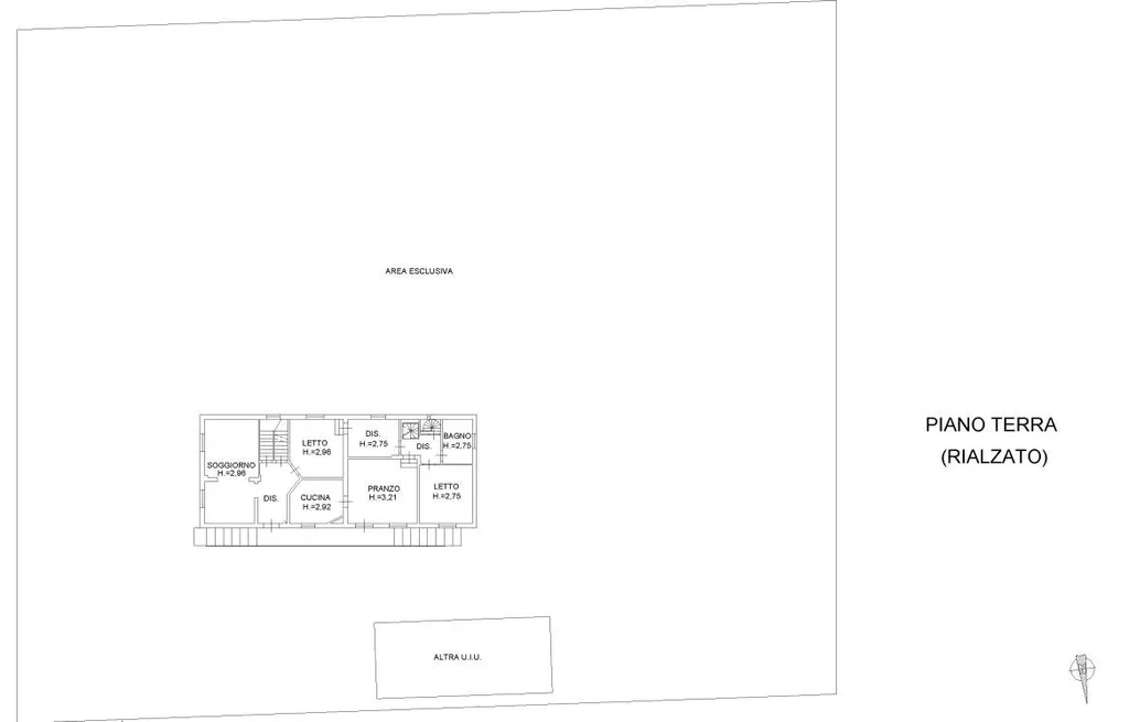
Rif. RV4806 - Castelnovo di Sotto - Casa bifamiliare (Rif.RV4806) Villa bifamiliare di complessivi 418 metri quadrati circondata da giardino privato di oltre 3.000 metri quadrati in parte verde ed in parte pavimentato con autobloccanti. L'immobile è attualmente strutturato per ospitare due nuclei famigliari, è composto infatti da due appartamenti distinti posti al piano terra e rialzato. Il primo appartamento è composto da ingresso indipendente, soggiorno, cucina abitabile, due camere da letto (una matrimoniale ed una singola), e bagno finestrato; comprende inoltre un'ampia mansarda con altezza media di 2,78 m e quindi comodamente vivibile, con annessa grande terrazza di 26 metri quadrati. Il secondo appartamento comprende ingresso indipendente, soggiorno, cucina, disimpegno, tre camere da letto (una con cabina armadio), due bagni e ripostiglio. Al piano seminterrato sono poi presenti diversi locali comuni ad uso cantine, lavanderie, depositi e ripostigli per un totale di 146 metri quadrati. La proprietà è circondata da uno splendido giardino molto curato sul quale sono presenti 3 autorimesse, in corpo staccato dall'abitazione, con annessi locali deposito. La casa è situata in zona verde e tranquilla di campagna, ideale per chi vuole vivere lontano dal traffico ed immerso nella natura. Classe energetica D.

Altre caratteristiche

Stato Immobile
In buone condizioni
Vani
7
Tipo di cucina
Abitabile
Balconi
1
Terrazze / Logge
1
Metratura totale terrazze / logge
25
Metratura giardino
3000
Piano
Su più livelli
Piani totali della palazzina
1
Tipologia Immobile
Villa abbinata
Categoria Immobile
Case e Appartamenti
Contatta Agenzia
Proposto da: PIAZZA AFFARI Servizi Immobiliari

Quotazioni immobiliari per Strada Prati Melli 16 - Castelnovo di Sotto