375 mq
3
2
Garage/Posto Auto
Giardino privato
Autonomo
G

Descrizione

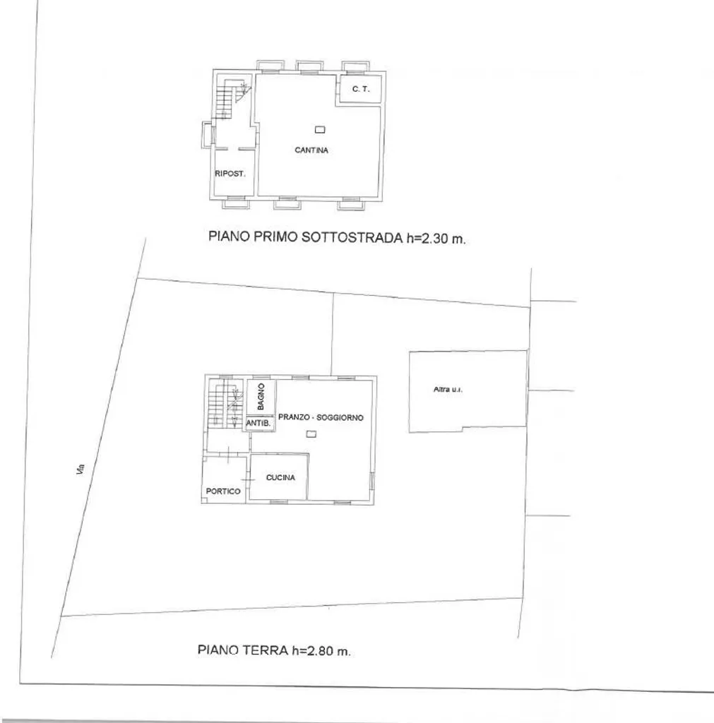
Rif. RV4654 - San Pellegrino - Casa singola con giardino (Rif.RV4654) Casa singola di ampia metratura, 375 metri quadrati circa disposti su quattro livelli, con la possibilità di realizzare due unità immobiliari distinte. L'immobile è stato edificato a metà degli anni '70 e mantenuto nel tempo con cura, può quindi essere abitato da subito. Al piano terra si trova l'ingresso, tramite porticato di 10 mq, disimpegno, grande soggiorno con area pranzo con camino, cucina abitabile, antibagno e bagno completo finestrato. Salendo al primo piano si incontra la zona notte composta da disimpegno, studio, tre camere da letto matrimoniali (una con loggia privata di 10 mq) e bagno finestrato. Salendo ulteriormente si raggiunge il piano mansardato dove è stato realizzato un appartamento, con superficie di 92 metri quadrati circa, composto da soggiorno con angolo cottura, camera da letto e bagno. Presenti inoltre ripostiglio e ampia soffitta con altezza minima di 1.50 m e massima di 2.87 m. Infine, scendendo al piano interrato si trovano ampia taverna con camino, cantina, ripostiglio e locale tecnico con centrale termica. La proprietà comprende inoltre un ampio garage. Circonda l'immobile il giardino privato di circa 500 metri quadri verde e curato. Zona tranquilla e servita, ben collegata dal trasporto pubblico e vicina a parchi ed aree verdi. Classe energetica G Indirizzo indicativo per identificare la zona.

Altre caratteristiche

Stato Immobile
In buone condizioni
Anno costruzione
1985
Vani
5
Tipo di cucina
Abitabile
Balconi
1
Terrazze / Logge
1
Metratura giardino
500
Piano
Su più livelli
Piani totali della palazzina
2
Tipologia Immobile
Villa singola
Categoria Immobile
Case e Appartamenti
Contatta Agenzia
Proposto da: PIAZZA AFFARI Servizi Immobiliari

Quotazioni immobiliari per Via Alessandro Tassoni 40 - Reggio Emilia