206 mq
4
3
Garage/Posto Auto
Giardino privato
Autonomo
In attesa di certificazione

Descrizione

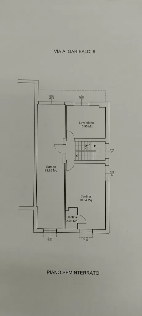
PIEVE MODOLENA. Villetta a schiera di testa, ristrutturata recentemente, situata in una zona tranquilla e residenziale, costruita nei primi anni 2000. Con i suoi 206 m commerciali, la casa si sviluppa su quattro livelli, offrendo ampi spazi per tutta la famiglia. Piano seminterrato composto da autorimessa doppia , taverna accogliente, lavanderia con cucina di servizio, perfetta per cene informali. Al piano rialzato, luminoso soggiorno con ingresso principale situato su un ampio patio provvisto di tende da sole avvolgibili , camino termoventilato con impianto di canalizzazione in tutti i locali,cucina abitabile, bagno pricipale e antibagno ad uso ripostiglio. Al primo piano si trova zona notte costituita da 3 camere da letto e un ulteriore bagno. Il piano sottotetto ospita un ampio e luminoso locale mansardato, con ulteriore bagno privato, terrazzino provvisto di tenda da sole avvolgibile e vano tecnico. All'esterno giardino con spazio verde anteriore e posteriore dove godere del sole e organizzare piacevoli barbecue. La villetta è dotata di inferriate e zanzariere in tutti i locali, oltre a pannelli solari con accumulo di acqua calda,sistema di climatizzazione per garantire il massimo comfort in ogni stagione. Consumi utenze minimi nonostante l'ampia metratura. L'accesso è adattato per persone con mobilità ridotta. Nessuna spesa Agenzia. No Agenzie

Planimetrie

Altre caratteristiche

Stato Immobile
Ristrutturato
Anno costruzione
2000
Anno ristrutturazione
2018
Vani
7
Tipo di cucina
Abitabile
Balconi
2
Metratura totale balconi
11
Terrazze / Logge
15
Metratura totale terrazze / logge
26
Dettaglio garage
Doppio
Posto auto
Presente
Metratura giardino
250
Piano
Su più livelli
Piani totali della palazzina
3
Condizionamento
Installato
Pannelli solari / fotovoltaico
Spese condominiali
€ Nessuna
Ingresso indipendente
Cantina
Ripostiglio
Antifurto
Mansarda
Lavanderia
Stato al rogito
Libero
Tipologia Immobile
Villetta a schiera
Categoria Immobile
Case e Appartamenti
Contatta Inserzionista
Rif. Immobile:
Proposto da: Pasquale Perrotta
Tel:

Quotazioni immobiliari per Via Anita Garibaldi, 8 - Pieve Modolena - Reggio Emilia