184 mq
3
2
Garage/Posto Auto
Autonomo
A4

Descrizione

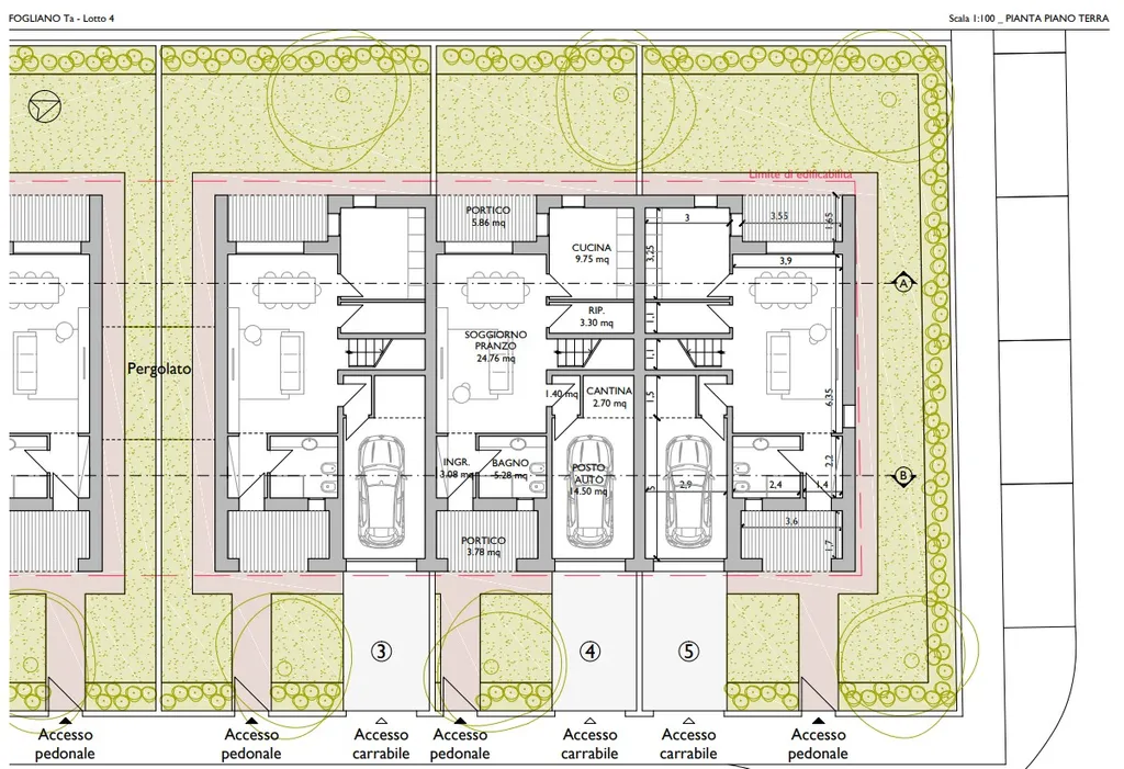
Rif. 2291 - RIF. 2291 - Proponiamo in vendita prestigiose villette a schiera di nuova costruzione, con ingresso indipendente, giardino privato e garage collegato internamente. Le abitazioni, disposte su due livelli, offrono al piano terra un luminoso soggiornocon affaccio sul portico, cucina abitabile, bagno e locale tecnico, mentre al piano primo si trovano tre camere, bagno e loggia Le superfici commerciali variano da 173 a 185 mq, con giardini privati, ideali per chi desidera vivere allaperto in un contesto tranquillo ma vicino a scuole, servizi e aree verdi. Le villette sono realizzate con impianti di ultima generazione, 3 kw fotovoltaico e finiture personalizzabili. Consegna prevista verso fine 2026. Contattaci per ricevere planimetrie dettagliate e prenotare una visita in cantiere.

Altre caratteristiche

Stato Immobile
Nuovo
Vani
4
Balconi
2
Posto auto
Nessuno
Metratura giardino
1
Piano
Terra
Ultimo piano
Cantina
Tipologia Immobile
Villetta a schiera
Categoria Immobile
Case e Appartamenti
Contatta Agenzia
Proposto da: IMMOBILIARE TIMAVO

Quotazioni immobiliari per Fogliano - Reggio Emilia