95 mq
2
1
Garage/Posto Auto
Autonomo
G

Descrizione

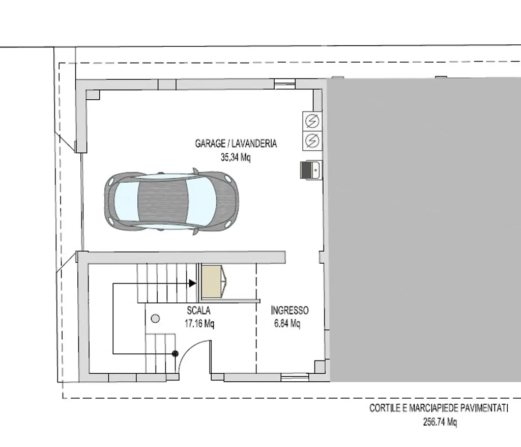
Rif. 592 - Rif. 592 - In cascina ristrutturata con poche unità abitative proponiamo villetta disposta su due livelli come segue. Al piano terra: ampio garage , lavanderia + giardino (67 mq) e area cortiliva ( 290 mq). Al 1°piano: ingresso, sala con angolo cottura, 2 bagni, 1 camera matrimoniale e una camera 3/4 grande. Di proprietà anche un sottotetto , non ci sono balconi e non ci sono spese condominiali .

Planimetrie

Altre caratteristiche

Stato Immobile
Ristrutturato
Tipo di cucina
Angolo Cottura
Posto auto
Nessuno
Metratura giardino
350
Piano
Terra
IPE
370
Tipologia Immobile
Villetta a schiera
Categoria Immobile
Case e Appartamenti
Contatta Agenzia
Proposto da: IMMOBILIARE DEI MILLE

Quotazioni immobiliari per Arceto - Scandiano