177 mq
1
2
Garage/Posto Auto
Giardino privato
Autonomo
A4

Descrizione

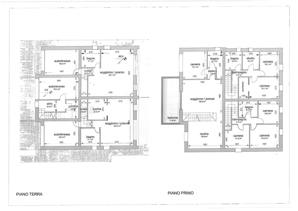
Rif. Dug5688 - Abbinate in fase di realizzazione, composte da al piano terra, sala con ampia portafinestra dove si raggiunge il giardino privato, cucina abitabile, bagno, autorimessa, al primo piano, una camera matrimoniale, una camera 3/4, una camera singola, bagno. Classe energetica A4 Per informazioni Valerio 348/7302005 CLASSE ENERGETICA:

Altre caratteristiche

Stato Immobile
In costruzione
Anno costruzione
2026
Vani
6
Tipo di cucina
Abitabile
Posto auto
Presente
Metratura giardino
350
Condizionamento
Installato
Pannelli solari / fotovoltaico
Lavanderia
Tipologia Immobile
Villetta a schiera
Categoria Immobile
Case e Appartamenti
Contatta Agenzia
Proposto da: STUDIO DUGONI IMMOBILIARE

Quotazioni immobiliari per Vezzano sul Crostolo