165 mq
3
2
Garage/Posto Auto
Autonomo
A4

Descrizione

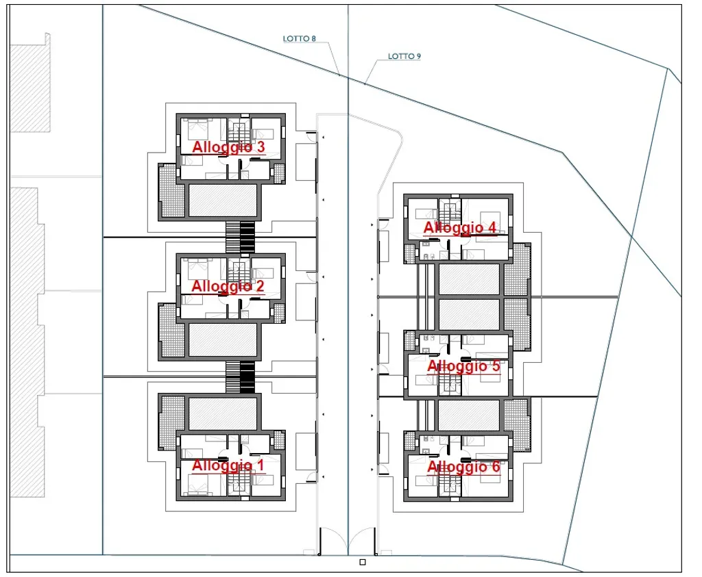
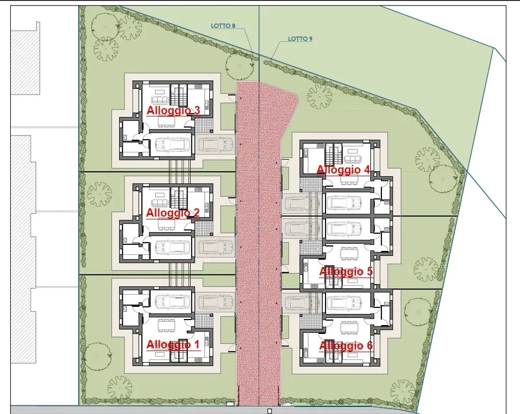
Rif. 402 - Rif. 402 - Si propongono in vendita ville semindipendenti di nuova costruzione, in classe energetica a4, collegate le une alle altre solo dal garage e con ampio giardino privato. Tra le disponibili presentiamo la nr.5 che è composta da salone, cucina abitabile, bagno, cantina, garage singolo e giardino di 100 mq ...al piano terra. Salendo al primo piano troviamo 3 camere ( 1 matrimoniale, 1 camera 3/4 e 1 singola ) , un bagno ed un terrazzo. Possibilità di avere metrature diverse di abitazione e giardino. Per maggiori informazioni e visionare progetto completo contattare l'ufficio allo 0522/431030.

Altre caratteristiche

Stato Immobile
Nuovo
Balconi
1
Terrazze / Logge
1
Posto auto
Nessuno
Metratura giardino
100
Piano
Terra
IPE
1
Cantina
Tipologia Immobile
Villa abbinata
Categoria Immobile
Case e Appartamenti
Contatta Agenzia
Proposto da: IMMOBILIARE DEI MILLE

Quotazioni immobiliari per Montecavolo - Quattro Castella