139 mq
3
2
Garage/Posto Auto
Giardino privato
Pompa di calore
A4

Descrizione

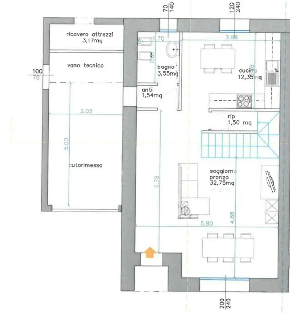
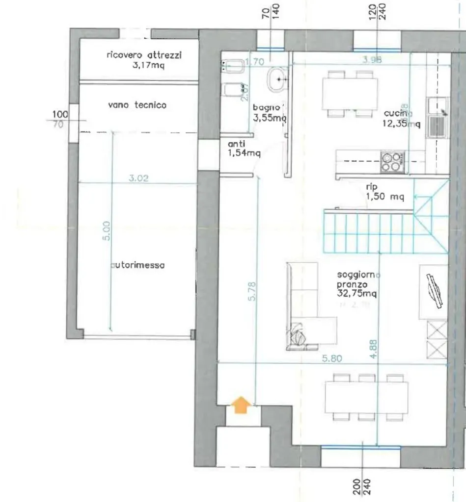
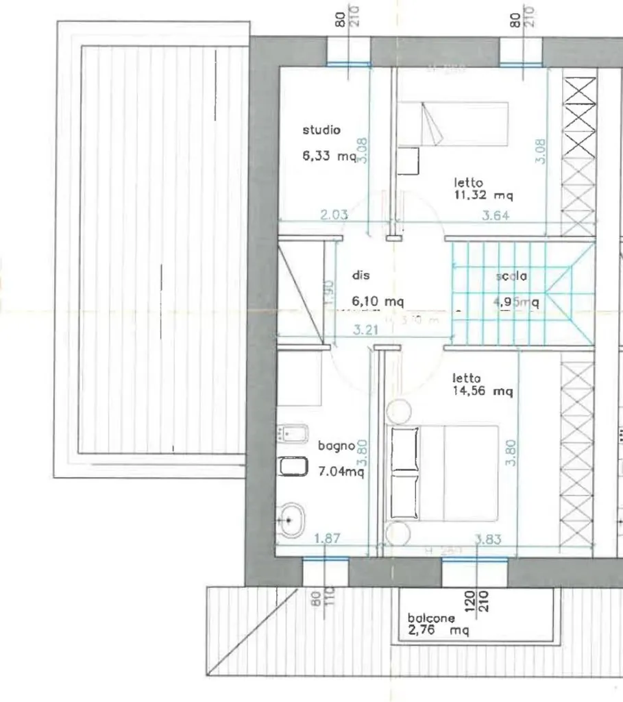
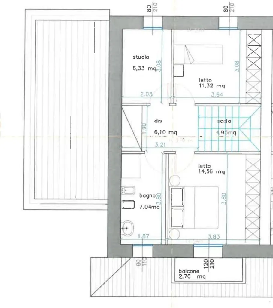
Rif. CT0112-1 - Canalina - Villetta a schiera in Classe A4 (Rif. CT0112-1) Villa a schiera d'angolo con superficie di circa 139 mq su due livelli ed ampio giardino privato di 180 mq circa. L'immobile, al piano terra, è suddiviso in ingresso da ampio porticato, soggiorno di oltre 30 mq, cucina abitabile di 13 mq aperta sulla zona giorno, ripostiglio, antibagno e bagno finestrato. Sempre a questo livello la proprietà comprende un garage singolo di 18 mq con deposito attrezzi. Salendo al primo piano, con superficie di 67 mq, troviamo la zona notte composta da disimpegno, camera matrimoniale di 14 mq circa con balcone privato, camera singola di 11 mq, camera/studio di 7 mq e secondo bagno finestrato. La villetta è stata edificata con tecniche costruttive innovative ed è completa di riscaldamento a pavimento con pompa di calore, predisposizione per impianto di condizionamento ed impianto di allarme, impianto fotovoltaico, infissi con doppi vetri completi di zanzariere e videocitofono. Le finiture interne sono da definire in base ai gusti dell'acquirente che potrà scegliere tra le proposte del capitolato di alto livello. Infine la proprietà comprende due posti auto interni all'area cortiliva comune. Le villette si trovano in un contesto residenziale molto verde e tranquillo ma comodamente raggiungibile con il trasporto pubblico e a pochi passi dal centro storico cittadino. Classe Energetica A4. Consegna immediata. Le immagini sono fornite al solo scopo di illustrare le potenzialità dell'immobile e hanno valore puramente indicativo, non costituendo elemento contrattuale.

Altre caratteristiche

Anno costruzione
2023
Vani
4
Tipo di cucina
Abitabile
Balconi
1
Terrazze / Logge
1
Metratura giardino
180
Piano
Su più livelli
Piani totali della palazzina
1
Tipologia Immobile
Villetta a schiera
Categoria Immobile
Case e Appartamenti
Contatta Agenzia
Proposto da: PIAZZA AFFARI Servizi Immobiliari

Quotazioni immobiliari per Viale Martiri Delle Foibe 13 - Reggio Emilia