132 mq
3
2
Garage/Posto Auto
Giardino privato
Pompa di calore
A4

Descrizione

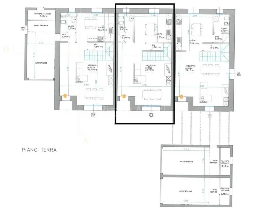
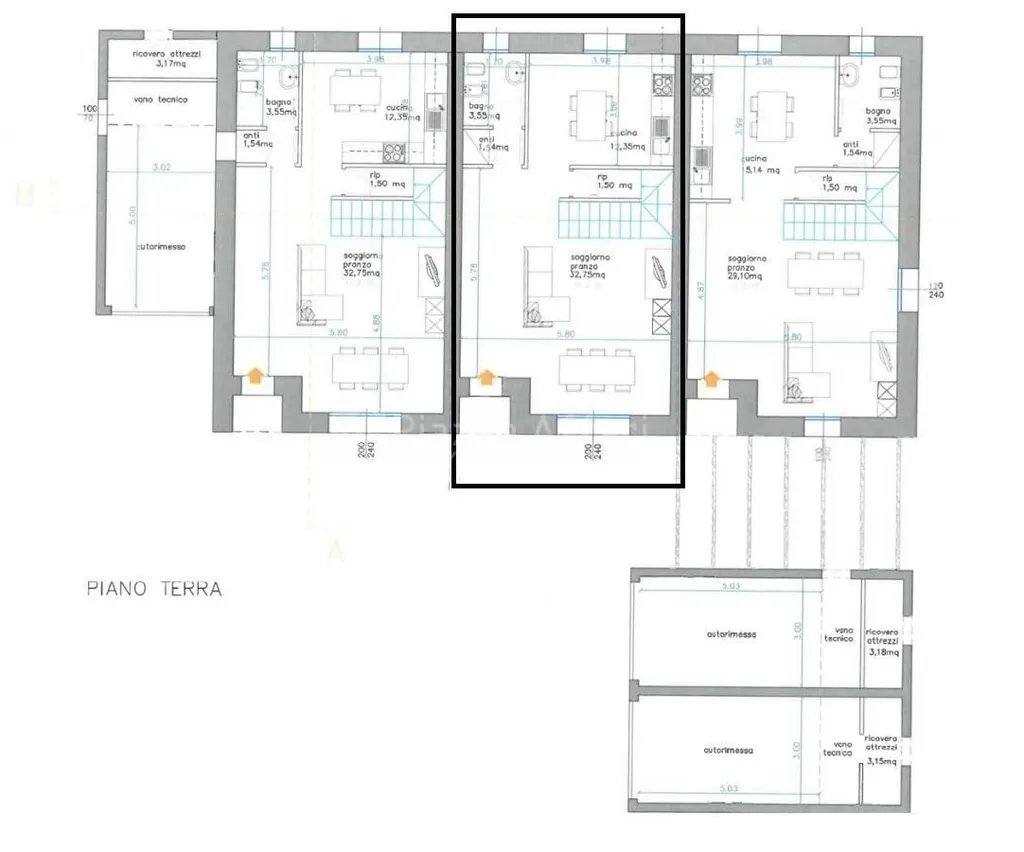
Rif. CT0112-2 - Canalina - Villetta a schiera in Classe A4 (Rif. CT0112-2) L'immobile è una villa a schiera centrale di circa 132 mq, con giardino in proprietà esclusiva, disposta solamente su piano terra e piano primo, così composta: ingresso tramite giardino e porticato, ampio soggiorno di 33 mq, cucina abitabile di circa 13 mq, anti bagno e bagno finestrato, ripostiglio/armadio a muro. Il primo piano di circa 64 mq ospita un disimpegno, camera matrimoniale di 14,50 mq con balcone, camera singola di 11,30 mq e studio di 7 mq circa, bagno finestrato e armadio a muro/riposiglio. Completano la proprietà un giardino in proprietà esclusiva di circa 68 mq, un garage singolo di mq 18 con deposito attrezzi e due posti auto in proprietà esclusiva. La villetta è stata edificata con tecniche costruttive innovative ed è completa di riscaldamento a pavimento con pompa di calore, predisposizione per impianto di condizionamento ed impianto di allarme, impianto fotovoltaico, infissi con doppi vetri completi di zanzariere e videocitofono. Le finiture interne sono da definire in base ai gusti dell'acquirente che potrà scegliere tra le proposte del capitolato di alto livello. Le villette si trovano in un contesto residenziale molto verde e tranquillo ma comodamente raggiungibile con il trasporto pubblico e a pochi passi dal centro storico cittadino. Classe Energetica A4. Consegna immediata. Le immagini sono fornite al solo scopo di illustrare le potenzialità dell'immobile e hanno valore puramente indicativo, non costituendo elemento contrattuale.

Altre caratteristiche

Stato Immobile
In ottime condizioni
Anno costruzione
2023
Vani
4
Tipo di cucina
Abitabile
Balconi
1
Metratura totale balconi
2
Terrazze / Logge
1
Metratura giardino
68
Piano
Su più livelli
Piani totali della palazzina
1
Tipologia Immobile
Villetta a schiera
Categoria Immobile
Case e Appartamenti
Contatta Agenzia
Proposto da: PIAZZA AFFARI Servizi Immobiliari

Quotazioni immobiliari per Via Martiri delle Foibe - Reggio Emilia